

Abmessungen der Standardausrüstung
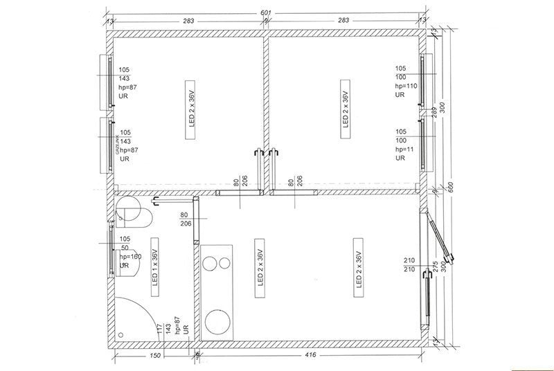
Größe (L x B x H): 6010 × 6000 × 2750 mm
1x Küche mit Strom. Herd und Spüle
4x Elektroheizung
3x Fenster (L: 1170 mm x H: 1430 mm)
2x Fenster (L: 1800 mm x H: 2100 mm)
5x LED-Lichtgitter
1x Badezimmer – Waschbecken, Toilette und Dusche
1x 60 Liter Boiler
1x Schlüssel
Außenmaße des Behälters: Standard
Länge: 6010 mm
Breite : 6000 mm
Höhe: 2750mm
Innenmaße des Behälters
Länge: 5750 mm
Breite: 5740mm
Höhe: 2500mm
Baugewerbe
Stützrahmen: Kaltgebogene Profile Nr. 3, Nr. 4, Nr. 5 mm, verzinktes Blech 0,5 mm
Dach: Glattes verzinktes Blech 0,5 mm außen. Dachneigung von 2 %. Isolierung mit gepresster Mineralwolle 100 mm
Decke: 15 mm OSB-Platte, Rigips-Oberfläche oder weiße PVC-Platten
Innenwände: T6 verzinktes Trapezblech beidseitig mit farbiger Schutzschicht beschichtet, 100 mm gepresste Fassadenwolle. Rigibs oder PCV-Platten mit imprägnierter Holzoberfläche
Trennwände: Imprägnierte Holzkonstruktion. 12 mm OSB-Platte als Schalldämmung mit starrer Wolloberfläche oder PCV-Platten
Boden: Max. Belastung 200 kg/m², 0,5 mm verzinktes Blech, 100 mm gepresste Fassadenwolle, 22 mm OSB-Platte von innen, PVC-Bodenbelag mit Holzstruktur
Außentür: 2100 mm x 2100 mm
Innentür: 800 mm x 2060 mm
Fenster (PVC-Rahmen – Doppelverglasung): 1050 mm x 1430 mm
Fenster (PVC-Rahmen – Doppelverglasung): 1050 mm x 1000 mm
Fenster (PVC-Rahmen – Doppelverglasung): 1050 mm x 500 mm
Natürliche Belüftung: 3 Stück.
Elektrische Belüftung: 1 Stück.
Standard-Rollladen (manuell betätigt): 4 Stück.
Dachboden 4 Seiten: 1 Stück.
Elektroinstallation
Stromleitung: Stromleitungen und Kabel verlaufen in Kanälen auf Putz. YDY-Buchsen 3 x 2,5 mm, Kabel für YDY-Beleuchtungssysteme 3 x 1,5 m.
Schaltkasten: PE-Elektrokasten mit hermetischem Gehäuse oder CEE 16A – 32A-Steckdose an der Außenwand des Containers
Hauptverteilerkasten: RG-Hauptverteilerkasten für jeden Stromkreis einzeln, mit Sicherung
Doppelte 230V-Steckdosen: einzeln
Beleuchtung: 5x 14W LED
Elektroheizung (mit separaten Sicherungen): 4 Stück.
Wasser-Abwasseranschluss: Die komplette Installation ist in die Wände eingelassen, Ablauf #110 mm. PE32-Wasserversorgung mit Ventil zum Absperren des Wassers. Die Kabel sind komplett aus PVC gefertigt und verschweißt.
Bei ES-Containerservice e.K. legen wir großen Wert auf eine transparente und effiziente Abwicklung Ihrer Bestellung. Da wir schwere Güter wie Anhänger, Container und landwirtschaftliche Zugmaschinen liefern, finden Sie hier alle Details zu unseren Lieferzeiten und Abläufen.
Die Lieferung ist für unsere Kunden innerhalb Deutschlands vollkommen kostenlos. Es fallen keine zusätzlichen Versand- oder Speditionsgebühren für Sie an.
Wir liefern ausschließlich an Adressen innerhalb der Bundesrepublik Deutschland.
Die Geschwindigkeit der Bearbeitung hängt vom Zeitpunkt Ihres Bestelleingangs ab:
Bestellungen von Montag bis Freitag vor 15:00 Uhr: Diese werden noch am selben Werktag bearbeitet.
Bestellungen von Montag bis Freitag nach 15:00 Uhr: Diese werden am folgenden Werktag bearbeitet.
Bestellungen an Wochenenden und Feiertagen: Diese werden am nächsten Werktag (Montag bis Freitag) bearbeitet.
Die Gesamtdauer bis zum Erhalt Ihrer Ware setzt sich aus der Bearbeitungszeit und der Transportzeit zusammen:
Bearbeitungszeit (Auftragsabwicklung): 2 bis 3 Werktage (Montag bis Freitag). Dies umfasst die Vorbereitung der Ware, die Prüfung der Dokumente und die Übergabe an unsere Logistikpartner.
Aves- / Transportzeit: 3 bis 5 Werktage (Montag bis Freitag).
Gesamtlieferzeit: In der Regel erhalten Sie Ihre Bestellung innerhalb von 5 bis 8 Werktagen (Montag bis Freitag).
Da es sich bei unseren Produkten (Containern, Traktoren, Anhängern) um sperrige Güter handelt, erfolgt die Lieferung per Spedition oder Spezialtransport.
Avisierung: In der Regel wird Sie die Spedition vor der Zustellung telefonisch oder per E-Mail kontaktieren, um einen genauen Liefertermin zu vereinbaren.
Erreichbarkeit: Bitte stellen Sie sicher, dass unter der angegebenen Telefonnummer jemand erreichbar ist, um Verzögerungen zu vermeiden.
| Phase | Dauer |
| Bestellannahme | Sofort (vor 15h) oder nächster Werktag |
| Bearbeitung | 2 - 3 Werktage |
| Versand/Transport | 3 - 5 Werktage |
| Gesamtzeit | 5 - 8 Werktage |
Sollten Sie Fragen zum Status Ihrer Lieferung haben, steht Ihnen unser Team gerne zur Verfügung:
ES-Containerservice e.K.
E-Mail: kontakt@escontainerservice.de
Telefon: +49 155 1102 6848
Sie haben das Recht, binnen vierzehn Tagen ohne Angabe von Gründen diesen Vertrag zu widerrufen. Die Widerrufsfrist beträgt vierzehn Tage ab dem Tag, an dem Sie oder ein von Ihnen benannter Dritter, der nicht der Beförderer ist, die Waren in Besitz genommen haben bzw. hat.
Um Ihr Widerrufsrecht auszuüben, müssen Sie uns (ES-Containerservice e.K., Billbrookdeich 215, 22113 Hamburg Deutschland, E Mail: kontakt@escontainerservice.de) mittels einer eindeutigen Erklärung (z. B. ein mit der Post versandter Brief oder eine E-Mail) über Ihren Entschluss, diesen Vertrag zu widerrufen, informieren.
Besonderer Hinweis zum Ablauf:
Bitte kontaktieren Sie uns vor der Rücksendung per E-Mail unter kontakt@escontainerservice.de. Wir lassen Ihnen daraufhin das entsprechende Rücksendeformular sowie Informationen zum weiteren Ablauf (Versandadresse, Logistikabwicklung) zukommen.
Wenn Sie diesen Vertrag widerrufen, haben wir Ihnen alle Zahlungen, die wir von Ihnen erhalten haben, einschließlich der Lieferkosten (mit Ausnahme der zusätzlichen Kosten, die sich daraus ergeben, dass Sie eine andere Art der Lieferung als die von uns angebotene, günstigste Standardlieferung gewählt haben), unverzüglich und spätestens binnen vierzehn Tagen ab dem Tag zurückzuzahlen, an dem die Mitteilung über Ihren Widerruf dieses Vertrags bei uns eingegangen ist.
Für diese Rückzahlung verwenden wir dasselbe Zahlungsmittel, das Sie bei der ursprünglichen Transaktion eingesetzt haben, es sei denn, mit Ihnen wurde ausdrücklich etwas anderes vereinbart.
Rücksendekosten: Sie tragen die unmittelbaren Kosten der Rücksendung der Waren. Bei Waren, die aufgrund ihrer Beschaffenheit (z. B. Anhänger, Container oder Traktoren) nicht normal mit der Post zurückgesandt werden können, werden diese Kosten auf einen Betrag von maximal ca. [Montant estimé ou "marktübliche Speditionskosten"] EUR geschätzt.
Zustand der Ware: Die Artikel müssen sich im Neuzustand befinden. Sie müssen für einen etwaigen Wertverlust der Waren nur aufkommen, wenn dieser Wertverlust auf einen zur Prüfung der Beschaffenheit, Eigenschaften und Funktionsweise der Waren nicht notwendigen Umgang mit ihnen zurückzuführen ist.
Umtausch: Falls Sie einen Umtausch wünschen, bitten wir Sie, uns dies im Voraus per E-Mail mitzuteilen, um die Verfügbarkeit und die Logistik zu prüfen.
(Wenn Sie den Vertrag widerrufen wollen, dann füllen Sie bitte dieses Formular aus und senden Sie es zurück.)
An:
ES-Containerservice e.K.
Billbrookdeich 215,
22113 Hamburg
Deutschland
E-Mail: kontakt@escontainerservice.de
Hiermit widerrufe(n) ich/wir () den von mir/uns () abgeschlossenen Vertrag über den Kauf der folgenden Waren ()/die Erbringung der folgenden Dienstleistung ()
Bestellt am ()/erhalten am ()
Name des/der Verbraucher(s)
Anschrift des/der Verbraucher(s)
Unterschrift des/der Verbraucher(s) (nur bei Mitteilung auf Papier)
Datum
(*) Unzutreffendes streichen.
Nicht vergessen! Die Produkte, die Sie angesehen haben. Legen Sie sie jetzt in den Warenkorb.
Hier sind einige unserer beliebtesten Produkte. Klicken Sie hier, um die neuesten Trends zu entdecken.